kód: 222030
eladó családi ház - Harka

méret: 134 nm
telek mérete: 232 nm
állapot: új építésű
építés anyaga: tégla
fűtés:

ár: 124.800.000 Ft

Harkán, kialakult lakókörnyezetben új építésű ikerház eladó!

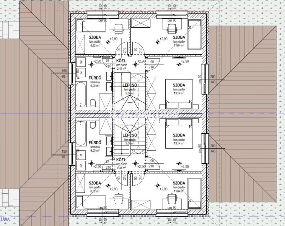
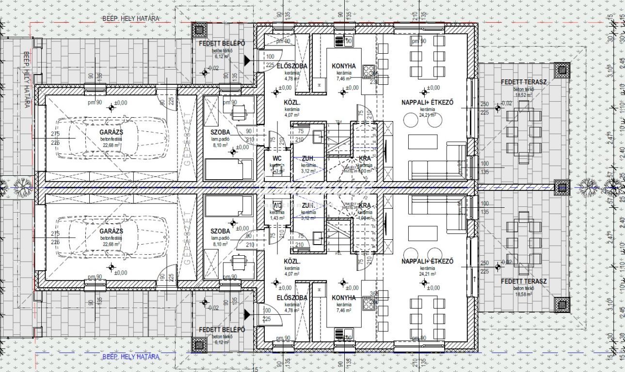
Mediterrán jellegű, igényesen megépített, dupla falazatú, nettó 126 m²-es lakóingatlan várja új tulajdonosát. Az elrendezés rendkívül praktikus: amerikai konyhás nappali + 4 külön nyíló hálószoba, 2 fürdőszoba biztosítja a kényelmes életteret.

A házhoz tartozik egy 232 m²-es saját kert, tágas fedett terasz, valamint egy nagy méretű garázs. Az ingatlan kialakítása igény szerint alakítható, így saját elképzelései szerint formálhatja otthonát.

A korszerű hőszivattyús rendszer gondoskodik az energiatakarékos fűtésről és hűtésről.

Kulcsrakész ár: 124,8 M Ft.

Érdeklődni: 06 20 939 7745